Vrijstaande woning op royaal perceel van 1.885 m² met vrij uitzicht aan de voorzijde. Bent u op zoek naar ruimte, rust en mogelijkheden? Kom dan een kijkje nemen bij deze woning. Achter de woning ligt een diepe en groene tuin vol potentie. Voor wie houdt van tuinieren, graag dieren bij huis wil houden of wil genieten van het groen is dit een ideale plek. Alle voorzieningen liggen binnen handbereik en toch ervaar je direct het landelijk wonen. De woning is in de jaren ’70 gebouwd en altijd bewoond geweest door de eerste eigenaren. Intern is het geheel eenvoudig doch functioneel ingedeeld – een perfecte basis voor wie niet terugdeinst voor een renovatie en het geheel naar eigen wens wil moderniseren.
Lees meerVrijstaande woning op royaal perceel van 1.885 m² met vrij uitzicht aan de voorzijde. Bent u op zoek naar ruimte, rust en mogelijkheden? Kom dan een kijkje nemen bij deze woning. Achter de woning ligt een diepe en groene tuin vol potentie. Voor wie houdt van tuinieren, graag dieren bij huis wil houden of wil genieten van het groen is dit een ideale plek. Alle voorzieningen liggen binnen handbereik en toch ervaar je direct het landelijk wonen. De woning is in de jaren ’70 gebouwd en altijd bewoond geweest door de eerste eigenaren. Intern is het geheel eenvoudig doch functioneel ingedeeld – een perfecte basis voor wie niet terugdeinst voor een renovatie en het geheel naar eigen wens wil moderniseren.
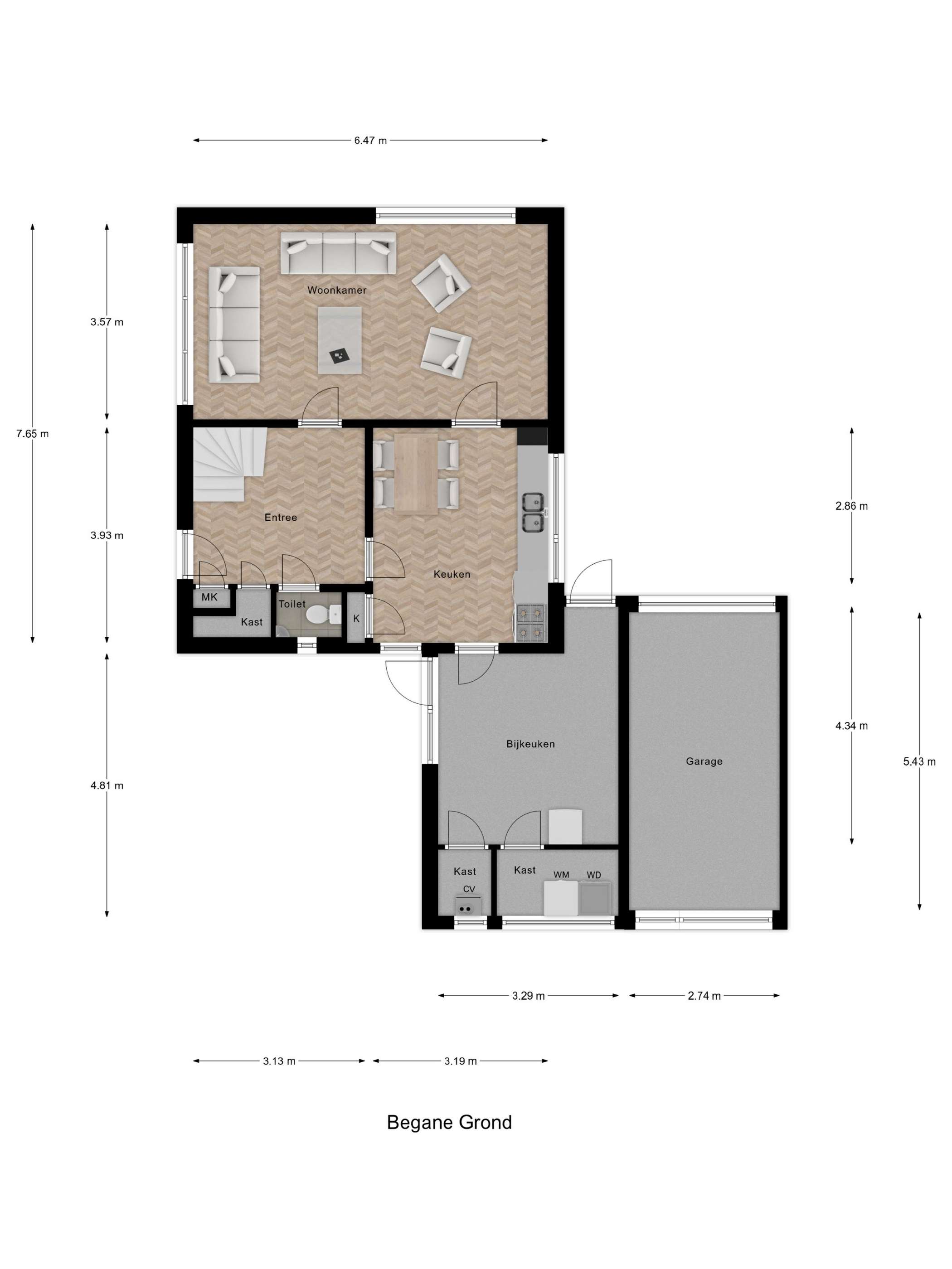
Begane grond:
We betreden de woning via een ruime entree met toegang tot een vaste kast en het toilet. Aan de voorzijde van de woning bevindt zich de woonkamer, met daarachter de woonkeuken voorzien van een eenvoudig keukenblok. Wie een open leefruimte wenst, kan relatief eenvoudig de muur tussen de woonkamer en keuken verwijderen om zo een prachtig, licht en ruim geheel te creëren. De woonkamer biedt prachtig zicht over de landerijen. Via de keuken bereiken we de ruime bijkeuken, met aansluitingen voor witgoed en plek voor de CV-ketel.
1e verdieping:
Op de eerste verdieping zijn vier slaapkamers, waarvan twee met vaste kasten. De badkamer is voorzien van een douche, toilet en wastafel en verkeert nog in originele jaren ’70-stijl. Er is ruimte om de badkamer te vergroten door een deel van een naastgelegen slaapkamer toe te voegen, wat mogelijkheden biedt voor een royale, moderne badkamer.
2e verdieping
Zolderberging. Beschoten kap en gedeeltelijk voorzien van vloer.
Bijzonderheden:
- Circa 80 meter diepe achtertuin;
- Gelegen op erfpachtgrond en 20e penning van toepassing;
- Canon €55,98 per jaar voor de hele kavel;
- Aangebouwde stenen garage voorzien van elektra;
- Cv-ketel functioneert niet;
- Ruime en praktische indeling met volop mogelijkheden!
Kenmerken
| Soort woonhuis | Vrijstaand |
| Perceeloppervlakte | 1885 m² |
| Woonoppervlakte | 117 m² |
| Inhoud | 533 m³ |
| Aantal kamers | 5 |
| Waarvan slaapkamers | 4 |
| Aantal badkamers | 1 voorzien van wastafel, douche en toilet. |
| Soort bouw | Bestaande bouw. |
| Bouwjaar | 1970 |
| Tuin | Rondom |
| Oriëntatie achtertuin | Westen |
| Oriëntatie voortuin | Oosten |
| Berging | Vrijstaande houten tuinberging. |
| Garage | Aangebouwde stenen garage voorzien van elektra. |
| Overig inpandige ruimte | Inpandige bergruimte (circa 31 m²) |
| Cv-ketel | Bouwjaar 2010 (eigendom) |
| Verwarming | Middels cv-ketel en radiatoren. |
