Aan de Pastoor Swildensstraat 15 bieden wij deze keurig onderhouden, instapklare vrijstaande woning aan. Gebouwd in 1986 en met een woonoppervlakte van 101 m², biedt deze woning comfort en een praktische indeling in een rustige en kindvriendelijke woonwijk. De woning beschikt over een lichte woonkamer met vrij uitzicht op een groen grasveld, waardoor een gevoel van ruimte en rust ontstaat. Rondom de woning ligt een ruime tuin van 698 m2! Doordat er later een stuk aan de achterzijde is bijgekocht is de tuin uniek groot. Er zijn twee schuren aanwezig, waarvan één met een serre-aanbouw, en beide schuren zijn voorzien van stroom, wat extra praktische mogelijkheden biedt voor hobby’s, klussen of opslag. Ook aan de duurzaamheid is gedacht: 8 zonnepanelen, de spouw is extra geïsoleerd in 2017, grotendeels HR++ glas uit 2020, airco voor het verwarmen en koelen, en uiteraard is deze woning volledig geïsoleerd gezien het bouwjaar. De ligging is uitstekend: basisscholen, supermarkten en andere dagelijkse voorzieningen zijn op korte afstand bereikbaar, waardoor deze woning zowel voor gezinnen als voor wie van rust en gemak houdt perfect geschikt is.
Lees meerAan de Pastoor Swildensstraat 15 bieden wij deze keurig onderhouden, instapklare vrijstaande woning aan. Gebouwd in 1986 en met een woonoppervlakte van 101 m², biedt deze woning comfort en een praktische indeling in een rustige en kindvriendelijke woonwijk. De woning beschikt over een lichte woonkamer met vrij uitzicht op een groen grasveld, waardoor een gevoel van ruimte en rust ontstaat. Rondom de woning ligt een ruime tuin van 698 m2! Doordat er later een stuk aan de achterzijde is bijgekocht is de tuin uniek groot. Er zijn twee schuren aanwezig, waarvan één met een serre-aanbouw, en beide schuren zijn voorzien van stroom, wat extra praktische mogelijkheden biedt voor hobby’s, klussen of opslag. Ook aan de duurzaamheid is gedacht: 8 zonnepanelen, de spouw is extra geïsoleerd in 2017, grotendeels HR++ glas uit 2020, airco voor het verwarmen en koelen, en uiteraard is deze woning volledig geïsoleerd gezien het bouwjaar. De ligging is uitstekend: basisscholen, supermarkten en andere dagelijkse voorzieningen zijn op korte afstand bereikbaar, waardoor deze woning zowel voor gezinnen als voor wie van rust en gemak houdt perfect geschikt is.
Begane grond:
Bij binnenkomst in de hal treft u de trap, het nette toilet en de meterkast. Vanuit de hal bereikt u de eetkamer en de lichte, ruime woonkamer, die door de grote ramen veel natuurlijk licht binnenlaat en een prettig uitzicht biedt op het aangrenzende grasveld. De gesloten keuken is voorzien van een inductiekookplaat (2021), koelkast, combimagnetron, afzuigkap en vaatwasser en biedt voldoende ruimte om comfortabel te koken. Aansluitend aan de keuken ligt de berging met toegang tot de achtertuin, wat extra praktische ruimte biedt voor opslag of dagelijkse werkzaamheden. De garage is afzonderlijk bereikbaar via een eigen ingang aan de buitenzijde en biedt volop mogelijkheden voor opslag, hobby of parkeren.
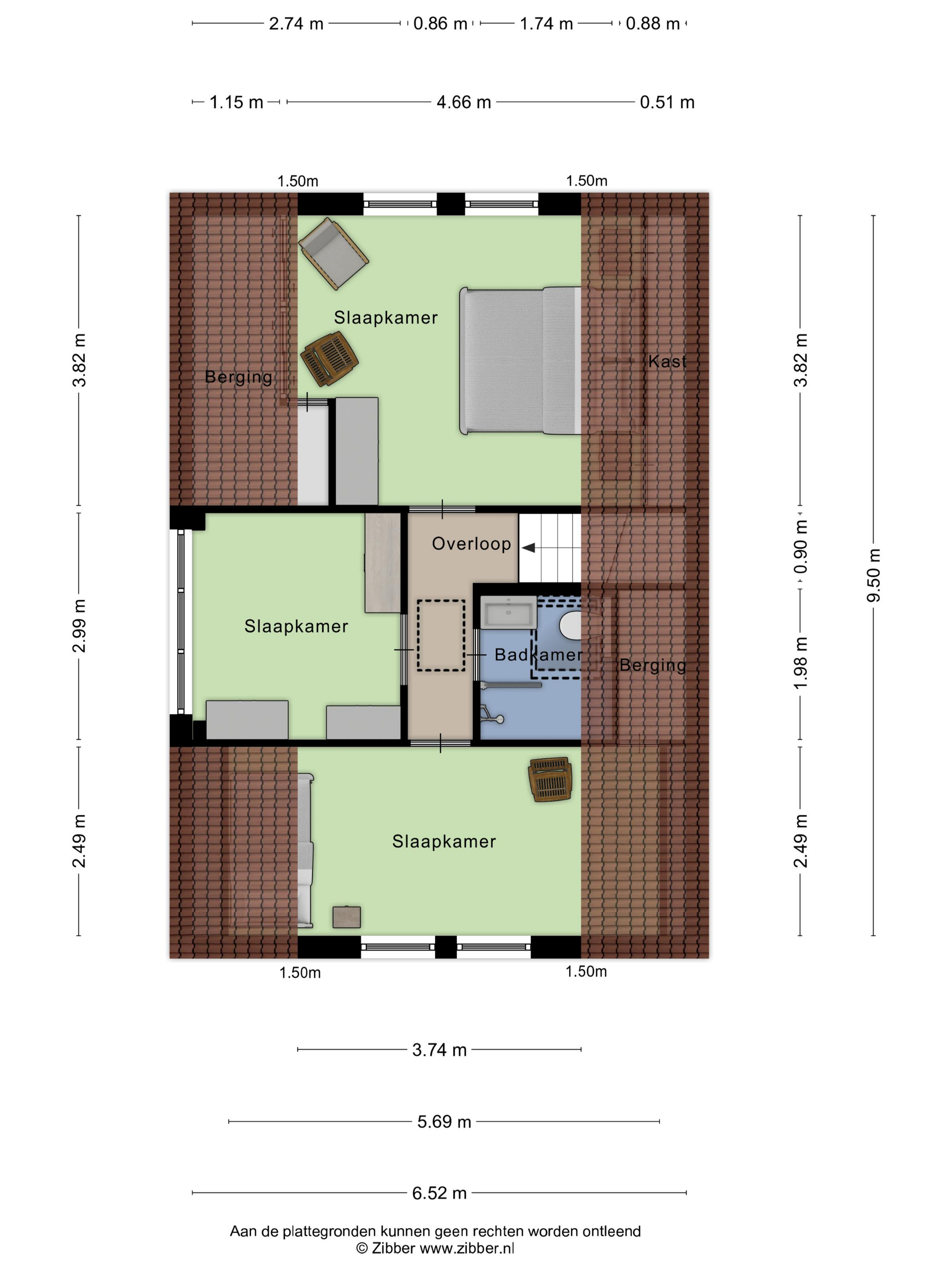
Eerste verdieping:
Op de eerste verdieping bevinden zich twee ruime slaapkamers en één kleinere slaapkamer, die bijvoorbeeld ideaal is als baby- kinderkamer. De moderne badkamer beschikt over een dakraam, waardoor er veel daglicht naar binnen valt en een prettige, lichte sfeer ontstaat. Verder is de badkamer voorzien van inloopdouche, wastafelmeubel en toilet.
Tweede verdieping:
Zolderberging.
Bijzonderheden:
- Schilderwerk extern uitgevoerd in 2021;
- Begane grond en eerste verdieping voorzien van rolluiken;
- CV-lease ketel bouwjaar 2014;
- Kunststof dakgoten, hierdoor onderhoudsarm;
- Zonnepanelen in eigendom, geplaatst in 2017;
- Extra grote achtertuin van circa 16 meter diep en circa 22 meter breed.
Kenmerken
| Soort woonhuis | Vrijstaand |
| Perceeloppervlakte | 698 m² |
| Woonoppervlakte | 101,2 m² |
| Inhoud | 439,28 m³ |
| Aantal kamers | 4 |
| Waarvan slaapkamers | 3 |
| Aantal badkamers | 1 voorzien van douche, toilet en wastafelmeubel. |
| Soort bouw | Bestaande bouw. |
| Bouwjaar | 1986 |
| Tuin | Rondom |
| Oriëntatie achtertuin | Noord-Oost |
| Oriëntatie voortuin | Zuid-Westen |
| Berging | 2 vrijstaande houten tuinbergingen (crica 43 m²) voorzien van elektra. |
| Garage | Aangebouwde garage voorzien van elektra en water (circa 15 m²). |
| Serre/Veranda | Aangebouwde houten serre aan de tuinberging. |
| Overig inpandige ruimte | Inpandige bergruimte (circa 15 m²). |
| Cv-ketel | Cv-ketel (Lease) bouwjaar 2014 Vaillant. |
| Verwarming | Middels radiatoren en airco. |
| Energielabel | Label C geldig tot 20-03-2033 |
| Zonnepanelen | 8 zonnepanelen (bouwjaar 2017) eigendom. |
